Gartenhaus Brava – Atyp
Gartenhaus Brava mit großer überdachter Terrasse. Der ideale Sommertyp für Frühling, Sommer und auch Herbst zur Erholung.
Die Grundkonstruktion dieses Hauses stammt aus einem Modell ohne Geräteschuppen. Auf Wunsch des Kunden wurde das Gartenhaus mit dieser Anpassung realisiert.
Die Nutzung ist jedem selbst überlassen, aber eine gute Alternative ist zum Beispiel eine Sommerküche oder ein Sommer-Esszimmer mit Grillmöglichkeiten auf der Terrasse.
Gartenhaus BRAVA wirkt zeitlos und modern.
Das Design dieses Gartenhauses wird Ihren Garten bereichern und eignet sich besonders gut für moderne Häuser mit Flachdächern.
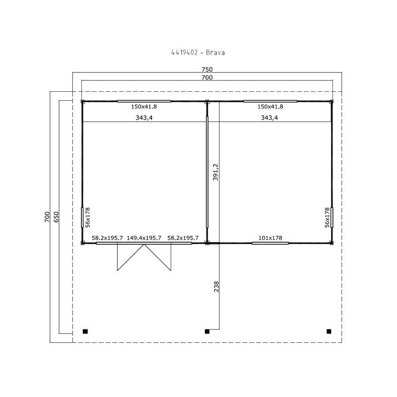
Der Innenraum wird Sie ebenfalls angenehm überraschen. 28 m² dieses Maß ist vollkommen ausreichend für Ihre Bedürfnisse. Das Gartenhaus ist aus nordischer Fichte gefertigt und hinterlässt einen sehr schönen Eindruck. Die Wandstärke beträgt 44 mm.
Sie müssen auch keine Angst haben, dass es tagsüber dunkel im Haus ist. Es verfügt über große Fenster und die Doppelflügeltüren lassen ebenfalls viel Licht in den Raum dieses Gartenhauses mit Terrasse.
Die Fenster bestehen aus isolierendem Doppelglas, was ein weiterer Vorteil für die Aufrechterhaltung eines angemessenen Wärmekomforts, besonders in den Herbst- und Frühlingsmonaten, ist.
Wir möchten besonders auf die gut gewählte Bodenplatte in Form von Betonpflastersteinen hinweisen.




