Blockhaus Caroline 2.2

  • Material: nordische Fichte
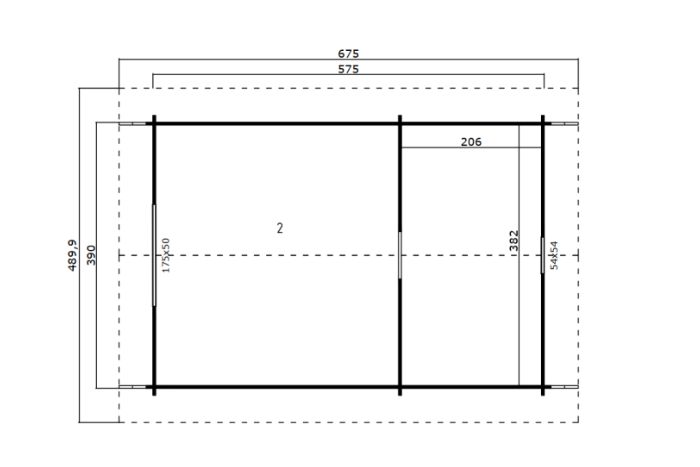
  • Größe: 390 cm x 575 cm (21,66 m²)
  • Materialstärke: 40 mm
  • Fenster: 54×54 cm, 88×88 cm, 129×88 cm, 150×51 cm
  • Türen: 265×195 cm, 83c190 cm

Preis inkl. MwSt.

(auch in Spiegelversion erhältlich)

9 300 
Ceny sú uvedené s DPH
Najnižšia cena za posledných 30 dní pred poskytnutím zľavy.

Verfügbar bei Nachbestellung

Dokumente zum Download:
Ergänzende Informationen:

Auch als spiegelverkehrte Version erhältlich.

Blockhaus Caroline 2.2

Geräumiges Gartenhaus mit 4 Räumen für Erholung und Arbeit

Das Gartenhaus Caroline 2.2 gehört zu den größten Modellen in unserem Sortiment. Dank der vier separaten Räume, der hochwertigen Isolierung und des eleganten Designs eignet es sich ideal als Ferienhaus, Sommerbüro oder Wochenendhaus auf Ihrem Grundstück.


Innenraum und Abmessungen

  • Innenfläche: 21,66 m²
  • Rauminhalt: 61,11 m³
  • Außenmaße: 410 × 595 cm
  • Fundamentmaße: 390 × 575 cm
  • Wandhöhe: 233,7 cm
  • Firsthöhe: 330,6 cm
  • Dachüberstände auf allen Seiten: 50 cm

Massive Konstruktion und hochwertige Verarbeitung

  • Wandstärke: 40 mm
  • Konstruktion: winddichte Blockbohlenverbindung
  • Material: unbehandeltes Holz
  • Zapfen: 10 cm
  • Fundamentbalken: 70 × 45 mm

Dach und Boden

  • Dachtyp: Satteldach
  • Dachneigung: 27°
  • Dachfläche: 37,12 m²
  • Bretter: 18 × 90 mm
  • Dacheindeckung: nicht im Lieferumfang enthalten
  • Empfohlene Anzahl an Schindelpaketen: 14
  • Boden: im Lieferumfang enthalten, Bodenbretter 18 × 90 mm

Türen und Fenster

Eingangstüren:

  • Typ: Doppelflügeltür mit seitlicher Verglasung
  • Maße: 2658 × 1957 mm
  • Verglasung: DGP+ (Premium Plus Doppelverglasung)

Nebentür:

  • Typ: Einflügeltür
  • Maße: 835 × 1900 mm
  • Verglasung: DGP+

Fenster:

  • 1× doppelflügeliges Fenster, nach innen öffnend (1290 × 882 mm)
  • 1× einflügeliges Fenster, nach innen öffnend (882 × 882 mm)
  • 1× kleines Fenster, nach innen öffnend (540 × 540 mm)
  • 1× festes horizontales Fenster (1500 × 510 mm)
  • Alle Fenster: DGP+ (Premium Plus Doppelverglasung)

Nutzungsmöglichkeiten des Gartenhauses Caroline 2.2

✔ Ferien- oder Wochenendhaus für die ganze Familie
✔ Gartenbüro mit separaten Räumen
✔ Ideal für Hobby, Werkstatt oder Mini-Wellnessbereich
✔ Perfekt für große Gärten und anspruchsvolle Kunden


Bestellen Sie das Gartenhaus Caroline 2.2 noch heute!

Ein hochwertiges, geräumiges Blockhaus, das Komfort, Funktionalität und elegantes Design in einem vereint.

Kontaktieren Sie uns

Wollen Sie sofort Informationen?
Rufen Sie gleich an und fragen Sie nach!

Täglich von 8:00 bis 20:00 Uhr

 

Haben Sie Fragen?

Für weitere Informationen füllen Sie bitte das Kontaktformular aus. Wir antworten innerhalb von 24 Stunden.

Haben Sie nicht gefunden, was Sie suchen?

Suchen Sie ein atypisches Häuschen? Schreiben Sie uns.

Ein unverbindliches Angebot erstellen wir Ihnen bereits innerhalb von 24 Stunden!

Falls Sie innerhalb von 24 Stunden keine Antwort erhalten, wurde Ihr Formular aufgrund eines technischen Problems nicht übermittelt.

Es könnte Ihnen gefallen

Neueste Blogartikel

Web und SEO von Beyondea – SEO-Agentur