Gartenhaus JAPAN 44

  • Material: Nordische Fichte
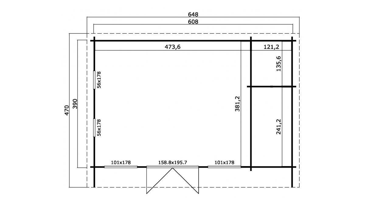
  • Maße: 608 cm x 390 cm (22,84 m²)
  • Inhalt: mit Boden, Nut- und Federbretter
  • Türen: 159 x 196 cm
  • Türen: 84 x 190 cm
  • Fenster: 101×178 cm 2x
  • Fenster: 56×178 cm 2x
  • Materialstärke: 44 mm

Preis inkl. MwSt.: 10.990,- EUR

(auch in Spiegelversion erhältlich)

8 990 
Ceny sú uvedené s DPH
Najnižšia cena za posledných 30 dní pred poskytnutím zľavy.

Verfügbar bei Nachbestellung

Dokumente zum Download:
Ergänzende Informationen:

Folgende AKTIONS-GARTENHÄUSER sind ebenfalls im Angebot:

Ofenburrg 2-OF 390×390 cm

Ofenburrg 3-OF 485×390 cm

Ofenburrg 5-OF 485×485 cm

Auch als spiegelverkehrte Version erhältlich.

Gartenhaus JAPAN 44: Eleganter und multifunktionaler Raum für Ihren Außenbereich

Gartenhaus JAPAN 44 ist die ideale Lösung für diejenigen, die ein geräumiges und vielseitiges Holzhaus suchen. Dank der drei getrennten Räume bietet es zahlreiche Nutzungsmöglichkeiten – vom Entspannungsbereich bis hin zu Arbeits- oder Küchenbereichen. Durch die Kombination aus klassischem Design und moderner Funktionalität ist das Gartenhaus JAPAN 44 die perfekte Wahl für jedes Außenumfeld.


Geräumiges und funktionales Interieur

  • Gesamtfläche: 22,84 m² bietet ausreichend Platz für verschiedene Nutzungen.
  • Volumen: 54,03 m³ sorgt für ein luftiges und komfortables Ambiente.
  • Drei separate Räume: Ideal für die Kombination aus Wohnbereich, Büro, Wellness oder Außenküche.

Feste und langlebige Konstruktion

  • Wandstärke: 44 mm garantiert hohe Stabilität und Wärmedämmung.
  • Blockverbindungen mit Nut und Feder: Bieten Festigkeit und lange Lebensdauer.
  • Material: Hochwertiges, unbehandeltes Holz, das für individuelle Anpassungen vorbereitet ist.

Moderne Pultdachkonstruktion und elegantes Design

  • Dachtyp: Flachdach mit einem Neigungswinkel von 3,4° für einen effizienten Wasserabfluss.
    • Dachfläche: 30,52 m²
    • Dachdeckung: Nicht im Lieferumfang enthalten (Möglichkeit, Schindeln oder Bitumenbahnen hinzuzufügen).
  • Dachüberstände:
    • Vorne: 20 cm
    • Hinten: 20 cm
    • Rechts: 20 cm
    • Links: 60 cm

Hochwertige Türen und Fenster

  • Doppeltür (DGP+ – Double Glazed Premium Plus):
    • Maße: 1588 × 1957 mm
    • Doppeltverglasung bietet bessere Isolierung und elegantes Aussehen.
  • Zweiflügelige Holzinnentüren (TP+ – Solid Wood Premium Plus):
    • Maße: 835 × 1900 mm
    • Ideal für separate Räume für verschiedene Zwecke.
  • Zwei große feststehende doppeltverglaste Fenster (DGP+ – Double Glazed Premium Plus):
    • Maße: 1010 × 1780 mm
    • Sorgen für ausreichend natürliches Licht.
  • Zwei Öffnungsfenster (DGP+ – Double Glazed Premium Plus):
    • Maße: 560 × 1780 mm
    • Gewährleisten Belüftung und Helligkeit im Inneren.

Boden und Montage

  • Bodenbelag: Im Lieferumfang enthalten, gefertigt aus hochwertigen Holzplanken mit den Maßen 18 × 90 mm.
  • Montage: Präzise bearbeitete Teile ermöglichen eine einfache und effiziente Installation.

Warum das Gartenhaus JAPAN 44 wählen?

  • Drei separate Räume – maximale Flexibilität bei der Nutzung.
  • Modernes und zeitloses Design – elegantes Pultdach und klare Linien.
  • Feste und hochwertige Konstruktion – robuste Holzwände und Verbindungen für lange Haltbarkeit.
  • Große Fenster und Türen – viel natürliches Licht und bequemer Zugang.
  • Hohe Variabilität der Nutzung – geeignet für Entspannung, Arbeit, Wellness oder zum Kochen im Freien.
  • Einfache Montage – schnelle und einfache Zusammenstellung dank präziser Verarbeitung.

Bestellen Sie noch heute das Gartenhaus JAPAN 44!

Schaffen Sie sich den idealen Raum für Entspannung, Arbeit oder Freizeit direkt in Ihrem Garten. Das Gartenhaus JAPAN 44 ist die perfekte Lösung für diejenigen, die ein multifunktionales und elegantes Holzhaus suchen!

Blogartikel über Gartenhäuser – Auswahl:

1 – Größe des Basis-Gartenhauses.

Es muss überlegt werden, wie viel Platz für das zukünftige Gartenhaus eingeplant werden kann. Bei Grundstücken mit ausreichend Fläche ist dies relativ einfach. Mehr Vorsicht ist geboten, wenn die Grundstücksfläche die Nutzfläche einschränkt…

10 – Vorstellung des Aruba-Gartenhauses mit Walmdach.

Was halten Sie von diesem Gartenhaus? Es ist wirklich schön. Aruba 3 ist ein modernes Gartenhaus mit einem wirklich perfekten Walmdach.

Kontaktieren Sie uns

Wollen Sie sofort Informationen?
Rufen Sie gleich an und fragen Sie nach!

Täglich von 8:00 bis 20:00 Uhr

 

Haben Sie Fragen?

Für weitere Informationen füllen Sie bitte das Kontaktformular aus. Wir antworten innerhalb von 24 Stunden.

Haben Sie nicht gefunden, was Sie suchen?

Suchen Sie ein atypisches Häuschen? Schreiben Sie uns.

Ein unverbindliches Angebot erstellen wir Ihnen bereits innerhalb von 24 Stunden!

Falls Sie innerhalb von 24 Stunden keine Antwort erhalten, wurde Ihr Formular aufgrund eines technischen Problems nicht übermittelt.

Es könnte Ihnen gefallen

Neueste Blogartikel

Web und SEO von Beyondea – SEO-Agentur