Gartenhaus mit Abstellraum Little Rock

  • Material: Nordische Fichte
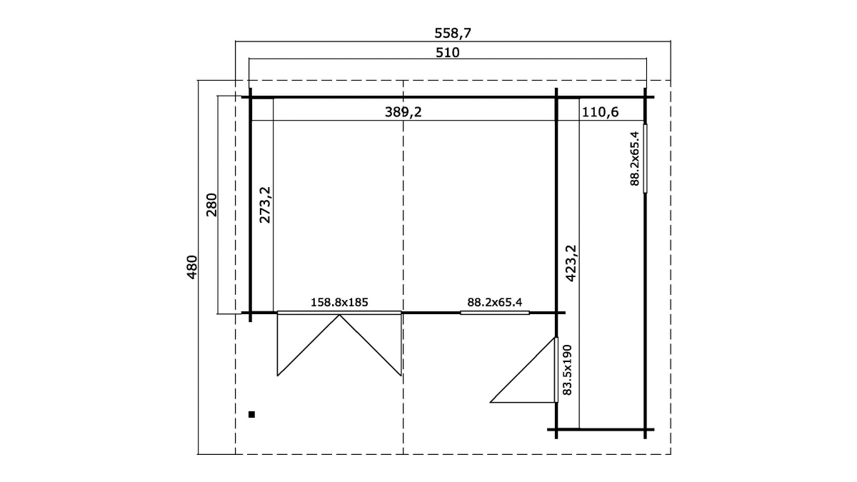
  • Abmessung: 510 cm x 430 cm (21,3 m²)
  • Inhalt: mit Boden, Nut- und Federbretter
  • Türen: 158 x 185 cm
  • Türen: 83 x 190 cm
  • Fenster: 188 × 65 cm – 2 Stück
  • Materialstärke: 34 mm

Auch in spiegelverkehrter Ausführung erhältlich.

4 990 
Ceny sú uvedené s DPH
Najnižšia cena za posledných 30 dní pred poskytnutím zľavy.

Verfügbar bei Nachbestellung

Dokumente zum Download:

Gartenhaus mit Lagerraum Little Rock – Kompakte Lösung für Ihren Garten

Gartenhaus mit Lagerraum Little Rock ist eine lang erwartete Neuheit im Bereich der Gartenbauten. Die praktische Front des Hauses mit einer Breite von 200 cm und der erweiterte Lagerraum an der Seite machen es für viele unserer Kunden besonders interessant. In der 34-mm-Ausführung bietet es nicht nur hohe Verarbeitungsqualität, sondern auch eine ästhetisch ansprechende Lösung für den Gartenbau. Die Materialstärke korrespondiert mit der Qualität des Produkts. Gartenhaus Little Rock erweitert die Modellreihe Keila und Borkum.

Häuschen passen perfekt zu Ihrem Haus und Garten.

Das Gartenhaus bietet 21,3 m2 Innenraum, der direkt in einen Lagerraum für Material, Werkzeuge oder Fahrräder und einen separaten Bereich für Erholung aufgeteilt ist. Die praktischen Doppeltüren erleichtern die Nutzung. Gartenhaus Little Rock eignet sich hervorragend für Kleingärtnerkolonien. Das Häuschen kann auch spiegelverkehrt aufgebaut werden. Das Häuschen wird aus vorgetrocknetem nordischem Fichtenholz gefertigt und umfasst Fenster, Doppeltüren, Beschläge, Boden und ein Schloss mit Schlüssel.

Zum Gartenhaus kann ein Carport bestellt werden, der die Dachfläche seitlich um 120 cm (oder nach Wunsch) verlängert.

Zusätzlich kann eine stilvolle Terrasse mit Geländer hinzugefügt werden. Carport und Terrasse sind in unseren Referenzen zu sehen.

Hauptmerkmale des Gartenhauses Little Rock

Gartenhaus Little Rock bietet die ideale Kombination aus Lagerraum und einem angenehmen Erholungsbereich im Garten. Klassisches Design und hochwertige Holzausführung garantieren Langlebigkeit und ästhetisches Aussehen.

Praktischer und multifunktionaler Raum

  • Gesamtinnenfläche: 21,3 m² bietet ausreichend Platz für Werkzeuge, Fahrräder oder Hobbyaktivitäten.
  • Volumen: 45,52 m³ sorgt für Luftigkeit und Komfort.
  • Zwei getrennte Räume: Möglichkeit der Aufteilung in Lager- und Erholungszone.

Abmessungen des Gartenhauses

  • Außenmaße:
    • Frontwand: 530 cm
    • Seitenwand: 450 cm
  • Grundfläche:
    • Frontwand: 510 cm
    • Seitenwand: 430 cm
  • Wandhöhe: 182,4 cm
  • Firsthöhe: 245,1 cm

Robuste und stabile Konstruktion

  • Wandstärke: 34 mm sorgt für Stabilität und Witterungsschutz.
  • Blockbohlenverbindungen mit Nut und Feder: Gewährleisten Stabilität und Langlebigkeit.
  • Material: Hochwertiges unbehandeltes Holz zur individuellen Gestaltung.

Traditionelles Satteldach

  • Dachneigung: 11,4° für effektiven Wasserablauf.
  • Dachfläche: 27,36 m² bietet Schutz vor Regen und Schnee.
  • Dachüberstände:
    • Vorne: 30 cm
    • Hinten: 20 cm
    • Rechts: 31,1 cm
    • Links: 17,7 cm

Türen und Fenster für Komfort und Licht

  • Doppelflügelige Tür:
    • Maße: 1588 × 1850 mm
    • Bequemer Zugang auch für größere Gegenstände.
  • Einflügelige Tür:
    • Maße: 835 × 1900 mm
    • Ermöglicht einen weiteren Zugang zum Haus.
  • Zwei klassische Fenster:
    • Maße: 882 × 654 mm
    • Sorgen für natürliches Licht und Belüftung.

Vorteile des Gartenhauses Little Rock

✔ Praktisches und multifunktionales Design – geeignet für Lagerung, Erholung oder als Hobbyraum.
✔ Hochwertige Holzkonstruktion – stabil und wetterbeständig.
✔ Ausreichend Platz – flexibel nutzbar.
✔ Klassisches Design mit Satteldach – traditionelles Aussehen für jeden Garten.
✔ Einfache Montage – passgenaue Teile für schnelle und effiziente Errichtung.
✔ Möglichkeit der spiegelverkehrten Montage – flexible Raumaufteilung.

Bestellen Sie das Gartenhaus Little Rock noch heute!

Schaffen Sie sich den perfekten Raum für die Aufbewahrung von Werkzeugen, Sportgeräten oder einen angenehmen Ort zum Entspannen. Little Rock bietet eine Kombination aus praktischem Raumangebot und ästhetischem Design!

Kontaktieren Sie uns

Wollen Sie sofort Informationen?
Rufen Sie gleich an und fragen Sie nach!

Täglich von 8:00 bis 20:00 Uhr

 

Haben Sie Fragen?

Für weitere Informationen füllen Sie bitte das Kontaktformular aus. Wir antworten innerhalb von 24 Stunden.

Haben Sie nicht gefunden, was Sie suchen?

Suchen Sie ein atypisches Häuschen? Schreiben Sie uns.

Ein unverbindliches Angebot erstellen wir Ihnen bereits innerhalb von 24 Stunden!

Falls Sie innerhalb von 24 Stunden keine Antwort erhalten, wurde Ihr Formular aufgrund eines technischen Problems nicht übermittelt.

Es könnte Ihnen gefallen

Neueste Blogartikel

Web und SEO von Beyondea – SEO-Agentur