Gartenhaus mit Abstellraum STRASSBURG

  • Material: Nordfichte
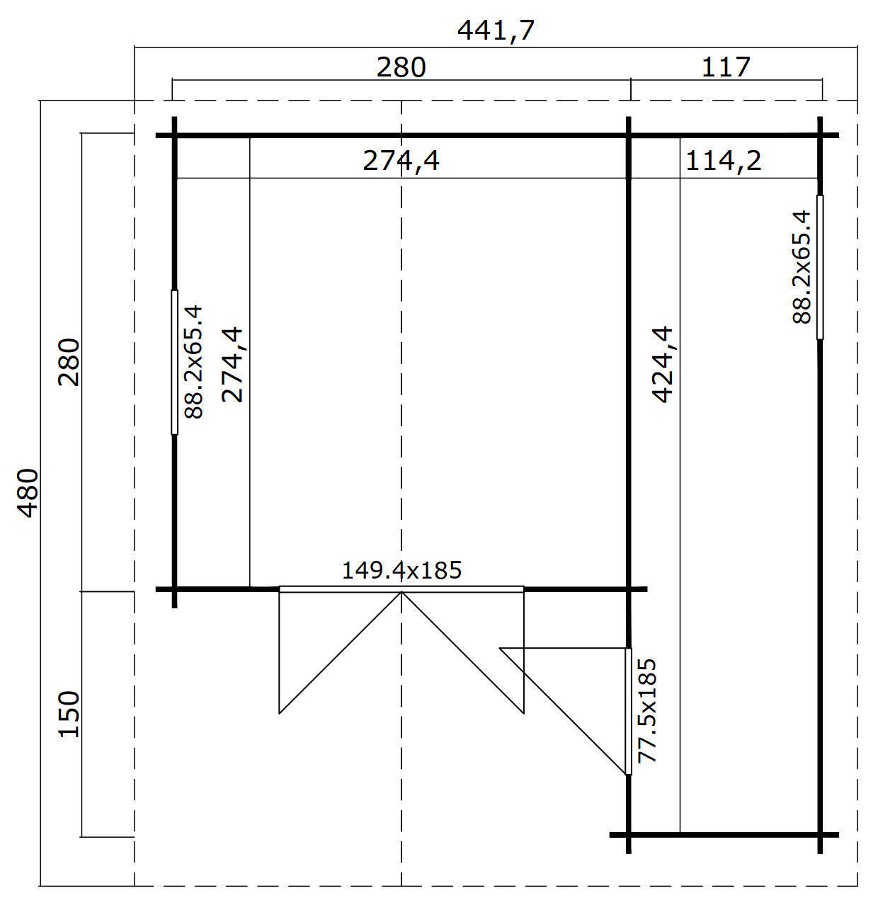
  • Maße: 397 cm x 430 cm
  • Lieferumfang: standardmäßig ohne Boden, Nut- und Federbretter
  • Türen: 149×185 cm ,77×185 cm
  • Fenster: 88×65 cm, 2 Stück
  • Materialstärke: 28 mm
3 390 
Ceny sú uvedené s DPH
Najnižšia cena za posledných 30 dní pred poskytnutím zľavy.

Verfügbar bei Nachbestellung

Dokumente zum Download:
Ergänzende Informationen:

Gartenhaus Strassburg mit Abstellraum: Praktische Lösung für Ihren Garten

Gartenhaus Strassburg mit Abstellraum ist die ideale Lösung für alle, die ein zuverlässiges und geräumiges Holzhaus mit praktischem Stauraum suchen. Dank des klassischen Designs und der robusten Konstruktion bietet das Gartenhaus Strassburg mit Abstellraum die perfekte Kombination aus Ästhetik und Funktionalität.


Geräumiges Interieur mit separatem Lagerraum

  • Gesamte Innenfläche: 16,61 m² bietet ausreichend Platz für Lagerung und Entspannung.
  • Nutzfläche des Lagers: 12,37 m² ermöglicht eine organisierte Aufbewahrung von Werkzeugen und Gartengeräten.
  • Gesamtvolumen: 36,45 m³ sorgt für eine geräumige und luftige Umgebung.

Robuste und langlebige Konstruktion

  • Wandstärke: 28 mm gewährleistet gute Stabilität und Schutz vor Witterungseinflüssen.
  • Blockbohlenverbindungen mit Nut und Feder: Garantieren Stabilität und eine lange Lebensdauer.
  • Material: Hochwertiges, unbehandeltes Holz, geeignet für individuelle Anpassungen.

Klassisches Satteldach für elegantes Erscheinungsbild

  • Dachtyp: Satteldach mit 16° Neigung für effektiven Wasserablauf.
    • Dachfläche: 22,08 m²
    • Dacheindeckung: Nicht im Lieferumfang enthalten (Möglichkeit der Ergänzung mit Schindeln oder Bitumenbahn).
  • Dachüberstände:
    • Vorne: 30 cm
    • Hinten: 20 cm
    • Rechts: 21,4 cm
    • Links: 23,2 cm

Hochwertige Türen und Fenster

  • Doppelflügelige Eingangstür (SGA+28 – Einfachverglasung mit 28 mm Rahmen):
    • Maße: 1494 × 1850 mm
    • Einfachverglasung sorgt für ausreichend Licht und bequemen Zugang.
  • Einfache Holztür (SGA+28 – Einfachverglasung mit 28 mm Rahmen):
    • Maße: 775 × 1850 mm
    • Ideal für den separaten Lagerraum.
  • Zwei zu öffnende Fenster (SGA – Einfachverglasung):
    • Maße: 882 × 654 mm
    • Sorgen für natürliches Licht und Belüftung.

Fußboden und Montage

  • Fußboden: Nicht im Lieferumfang enthalten. Optional erhältlich.
  • Montage: Präzise bearbeitete Teile ermöglichen eine einfache und effiziente Montage.

Warum das Gartenhaus Strassburg mit Abstellraum wählen?

  • Kombination von Gartenhaus und Lagerraum – ideal für Entspannung und praktischen Nutzen.
  • Klassisches Design mit Satteldach – elegantes Erscheinungsbild passend für jeden Garten.
  • Robuste Konstruktion – starke Holzwände und präzise Verbindungen garantieren lange Lebensdauer.
  • Geräumiges Interieur – viel Platz für Gartengeräte und Entspannungsbereich.
  • Hochwertige Türen und Fenster – viel Licht und komfortabler Zugang.
  • Einfache Montage – schnelle und einfache Aufbau dank präziser Verarbeitung.

Bestellen Sie Ihr Gartenhaus Strassburg mit Abstellraum noch heute!

Schaffen Sie sich den perfekten Raum für Lagerung, Arbeit oder Entspannung direkt in Ihrem Garten. Das Gartenhaus Strassburg mit Abstellraum ist die perfekte Wahl für alle, die ein stilvolles und funktionales Holzhaus suchen!

Zum Gartenhaus kann ein zusätzlicher Unterstand bestellt werden.

Der Unterstand an der Seite verlängert das Dach um 120 cm (oder nach Ihren individuellen Wünschen). Unterstand und Terrasse können in unseren Realisierungen besichtigt werden.

(auch als spiegelverkehrte Version erhältlich)

Kontaktieren Sie uns

Wollen Sie sofort Informationen?
Rufen Sie gleich an und fragen Sie nach!

Täglich von 8:00 bis 20:00 Uhr

 

Haben Sie Fragen?

Für weitere Informationen füllen Sie bitte das Kontaktformular aus. Wir antworten innerhalb von 24 Stunden.

Haben Sie nicht gefunden, was Sie suchen?

Suchen Sie ein atypisches Häuschen? Schreiben Sie uns.

Ein unverbindliches Angebot erstellen wir Ihnen bereits innerhalb von 24 Stunden!

Falls Sie innerhalb von 24 Stunden keine Antwort erhalten, wurde Ihr Formular aufgrund eines technischen Problems nicht übermittelt.

Es könnte Ihnen gefallen

Neueste Blogartikel

Web und SEO von Beyondea – SEO-Agentur