Holzgartenhaus Sri Lanka

  • Material: nordische Fichte
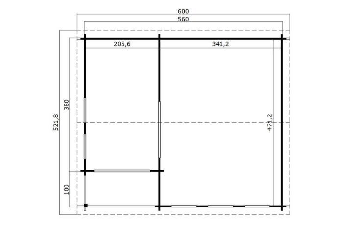
  • Größe: 560 x 380 cm (26 m²)
  • Materialstärke: 44 mm
  • Fenster: 71 x 124 cm x5
  • Türen: 158×195 cm

Preis inkl. MwSt.

(auch in Spiegelversion erhältlich)

7 400 
Ceny sú uvedené s DPH
Najnižšia cena za posledných 30 dní pred poskytnutím zľavy.

Verfügbar bei Nachbestellung

Dokumente zum Download:
Ergänzende Informationen:

Auch als spiegelverkehrte Version erhältlich.

Holzgartenhaus Sri Lanka

Elegantes Gartenhaus mit zwei Räumen und großzügiger Terrasse

Das Gartenhaus Sri Lanka ist die ideale Lösung für alle, die einen stilvollen Raum zum Entspannen, Arbeiten oder für gemütliche Stunden im Garten suchen. Dank der zwei separaten Räume und der integrierten Terrasse bietet es eine perfekte Nutzung als Sommerhaus, Atelier oder Gartenbüro.


Innenraum und Abmessungen

  • Innenfläche: 25,97 m²

  • Rauminhalt: 65,88 m³

  • Außenmaße: 500 × 580 cm

  • Fundamentmaße: 480 × 560 cm

  • Wandhöhe: 222,3 cm

  • Firsthöhe: 285 cm

  • Dachüberstände: vorne/hinten 20 cm, seitlich 21,1 cm


Massive Konstruktion und robuste Verarbeitung

  • Wandstärke: 44 mm

  • Konstruktion: winddichte Blockbohlenverbindungen

  • Material: unbehandeltes Holz

  • Zapfen: 10 cm

  • Fundamentbalken: 70 × 45 mm


Dach und Boden

  • Dachtyp: Satteldach

  • Dachneigung: 14,9°

  • Dachfläche: 32,4 m²

  • Bretter: 18 × 90 mm

  • Dacheindeckung: nicht im Lieferumfang enthalten

  • Empfohlene Anzahl an Schindelpaketen: 13

  • Boden: im Lieferumfang enthalten – Bodenbretter 18 × 90 mm


Türen und Fenster

Doppelflügelige Eingangstür:

  • Maße: 1588 × 1957 mm

  • Verglasung: DGP+ (Premium Plus Doppelverglasung)

  • SGC: Einfachverglasung – Variante Silver

Fenster:

  • Anzahl: 5× öffnbar

  • Maße je Fenster: 710 × 1224 mm

  • Öffnung: nach innen

  • Verglasung: DGP+ (Premium Plus Doppelverglasung) – Variante Gold

  • Alternative Verglasung: SGC – Einfachverglasung – Variante Silver


Terrassenbereich

  • Im Lieferumfang enthalten

  • Mit Umrandung

  • Maße: Breite 206 cm × Tiefe 100 cm

  • Dielen: 19 × 90 mm


Nutzungsmöglichkeiten des Gartenhauses Sri Lanka

✔ Erholungszone mit Terrassenblick
✔ Büro oder Werkstatt mit viel Tageslicht
✔ Gartenatelier oder Hobbyraum
✔ Kombination aus Wohnen und Arbeiten an einem Ort


Bestellen

Sie das Gartenhaus Sri Lanka noch heute!

Schaffen Sie sich einen eleganten und funktionalen Rückzugsort für Entspannung, Kreativität oder Arbeit – direkt in Ihrem Garten.

Kontaktieren Sie uns

Wollen Sie sofort Informationen?
Rufen Sie gleich an und fragen Sie nach!

Täglich von 8:00 bis 20:00 Uhr

 

Haben Sie Fragen?

Für weitere Informationen füllen Sie bitte das Kontaktformular aus. Wir antworten innerhalb von 24 Stunden.

Haben Sie nicht gefunden, was Sie suchen?

Suchen Sie ein atypisches Häuschen? Schreiben Sie uns.

Ein unverbindliches Angebot erstellen wir Ihnen bereits innerhalb von 24 Stunden!

Falls Sie innerhalb von 24 Stunden keine Antwort erhalten, wurde Ihr Formular aufgrund eines technischen Problems nicht übermittelt.

Es könnte Ihnen gefallen

Neueste Blogartikel

Web und SEO von Beyondea – SEO-Agentur